
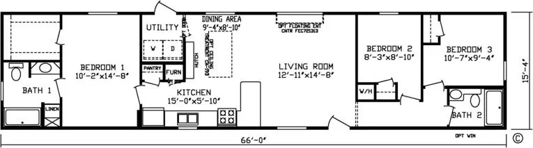
Square Feet: 1012
Bedrooms: 3
Bathrooms: 2
Style: Single-wide
Type: Manufactured
















Nominal 3/12 Roof Pitch
8’ Sidewall Height with Flat Ceiling
Rafters 24” O.C.
16” O.C. Floor Joists
19/32” Tongue & Groove 4’x8’ OSB Floor Decking
R-11 Floor Insulation
Owens Corning® 25 Year Shingled Roof
Royal Double 4” Dutch Vinyl Lap Siding
Ice & Water Barrier
Exterior Weather Wrap
Shutters Doorside
7/16 OSB Exterior Sheathing
R-29 Roof Insulation
2x4 Sidewalls w/R-11 Insulation
Gas Furnace
Positive Operating System
Exterior GFI Weather Resistant Receptacle on Sidewall
GFI Bath & Kitchen Receptacles
Smoke Alarms
Wire & Vent for Dryer
Rust Coach Light at Front & Rear Door
Recessed LED Can Lights — Dining Room, Bedrooms, 1 in Kitchen, 1 at Kitchen Sink
100 AMP Service
1/2" Decorative Vinyl on Gypsum Walls
Textured Stippled Ceilings
3-5/8" Crown Molding in Living Room, Dining Room, Kitchen & Hall w/Flat Trim in Remainder of Home
1-1/2" Door & Window Casing
Mini Blinds Throughout
Fabric Valances in Living Room & Bedrooms
1-Piece Fiberglass Tub / Shower in Baths
Furniture Style Bath Lav in Master Bath
Pop-Up Drains on Bath Sinks w/Overflows
Power Exhaust Fan
Formica Backsplash
Framed Mirrors
Porcelain Lav
Banjo Counter Top in Bath 2(where applicable)
40" Overhead Kitchen Cabinets
Shaker Style Wrapped Cabinetry w/Wrapped Stiles
Hidden Hinges
Dove Tail Drawer Construction
Side Mounted Drawer Guides
Formica Kitchen Backsplash
Shelf in Washer / Dryer Area
Easy Clean Tilt-Out Sash, Single- Hung Windows
Kinro® White Low-E Vinyl Windows
34" x 82" Decorator 6-Panel Steel Front Door w/Storm & Deadbolt
34" x 82" Steel 9-Lite Cottage Rear Door
Dead Bolt Security Lock on Steel Front Door
Floor Mounted Door Stops
Triple Hinged Interior Doors
Pre-Hung 6-Panel White Interior Doors
Nickel Interior Door Knobs
Shaw® Take Away Carpet
Congoleum® Roll Goods
Rebond Carpet Pad
Roll Goods in Living Room, Baths, Kitchen, Dining Room, Utility & Foyer
Tack Strip Carpet Installation in Bedrooms & Halls
Carpet Bar Where Applicable
Single Lever Bath Faucet w/Shower Head
Plumbing for Washer
30 Gallon Electric Water Heater
7" Deep Stainless Steel Kitchen Sink
2 Handle Hi Arc Kitchen Faucet w/Pull-Down
Main Water Shut-off Below Floor
Water Heater Access Panel (Per Print)
Stainless Steel 18 CF Frost Free Refrigerator
Stainless Steel 30" Standard Gas Range
Stainless Steel Euro Range Hood